IN PROVINCIA DI ASTI - Situata sulla collina di fronte a Montechiaro (AT) , CASA INDIPENDENTE IN OTTIMA POSIZIONE E IMMERSA NEL VERDE Euro 179.000
IN PROVINCIA DI ASTI - SULLA COLLINA DI FRONTE A MONTECHIARO (AT) , CASA INDIPENDENTE SITUATA IN OTTIMA POSIZIONE E IMMERSA NEL VERDE, nel cuore del Monferrato .
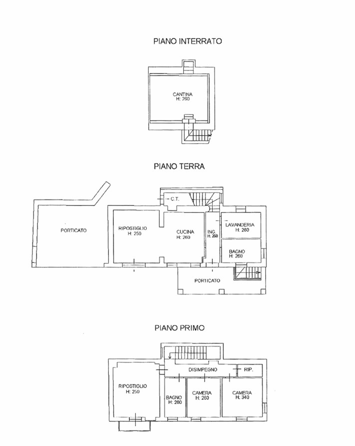
L'immobile ideale sia come prima o seconda casa e composto da :
PIANO TERRA : ingresso , cucina - soggiorno , ripostiglio , bagno , lavanderia, portico e porticato.
PIANO PRIMO : 3 locali , bagno , ripostiglio , disimpegno e balcone.
PIANO INTERRATO : Cantina
Terreno di pertinanza di mq 2.840
Riscaldamento autonomo a GPL ( bombolone interrato )
Riscaldamento tramite stufa a idropellets collegata alla rete termosifoni
Fossa Biologica
Dotata di antifurto
Cancello carraio di ingresso , automatico
Climatizzatore in una camera al primo piano
Serramenti con doppio vetro
Inferriate di sicurezza
Superficie catastale mq. 209
VALIDI MOTIVI PER ACQUISTARE L'IMMOBILE
- Casa indipendente
- Posizione in mezzo al verde
- Comoda ai servizi
- Ideale come prima o seconda casa
Filmato esterno immobile: https://youtu.be/OxRB3iP6Or8
Filmato interno immobile: https://youtu.be/4Pm0-Q3YkPI
Filmato fotografico: https://youtu.be/QGnA5yBMOR8

Contatti
Via Gerbi 23/B
14100 Asti (AT) Italy
Mobile Phone: +39 347 4145418
Mobile Phone: +39 340 1232377
Web: www.garelloimmobiliare.it
garelloimmobiliare@libero.it