ASTI - STRADA FORTINO ALLOGGIO 5 vani CATASTALI , ingresso , soggiorno , cucina con balcone , 2 camere da letto matrimoniali , bagno con doccia , balcone e cantina , mq 89 , prezzo 98.000 euro
ASTI STRADA FORTINO ALLOGGIO OTTIME CONDIZIONI - ABITABILE SUBITO .
L'immobile è ubicato in zona comoda tra il centro e la parte nord della città.
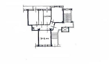
Situato in condominio , presenta 2 arie, un'aria sul piano rialzato e la seconda al primo piano lato cortile.
Composto da ingresso , cucina con balcone, soggiorno , bagno e una camera da letto che si affacciano sul cortile , mentre una seconda camera si trova lato facciata principale.
Completa la proprietà la cantina al piano seminterrato.
Superficie Catastale mq 89
Riscaldamento centralizzato con termovalvole
Serramenti in legno con doppio vetro e tapparelle
Porta blindata
VALIDI MOTIVI PER ACQUISTARE L'ALLOGGIO
- ZONA COMODA AI SERVIZI
- BUONA METRATURA 4 VANI - 89 mq
- OTTIMO STATO
- ABITABILE SUBITO
- AMPIO BALCONE PER STENDERE LATO CORTILE
Video immobile: https://youtu.be/gfFd25OScH8
Filmato fotografico immobile: https://youtu.be/3q5jHWjSJ0Q


Contatti
Via Gerbi 23/B
14100 Asti (AT) Italy
Mobile Phone: +39 347 4145418
Mobile Phone: +39 340 1232377
Web: www.garelloimmobiliare.it
garelloimmobiliare@libero.it